Проектирана и построена през 2007г. от Аделина Илиев и Радо Илиев
Публикувана в списания за архитектура и интериорен дизайн: Abitare, Bravacasa, Wall Street Journal 'Design' Section
Намира се на края на село Ясна Поляна, Община Приморско - с гледка към хълмовете на Странджа.
Само на 10км от пясъчните плажове и дюни на Приморско.
На 38 км от Бургас и неговото международно летище с директни полети до Лондон, Виена, Берлин и пр.
Близо до българската граница с Турция - само на 4 часа път с кола до космополитния Истанбул.
Проектирана и построена за използване през летните месеци - от май до октомври.
Много солидна конструкция - бетонен под, покрив и колони, тухлени стени, алуминиев двоен стъклопакет, всичко това поддържа спалните прохладни през горещите летни дни.
Може да се дострои за да стане за обитаване целогодишно, може би и с добавяне на басейн по дължината.
Идеалното място за бягство от градския живот и напрежение без да се пътува надалеч.
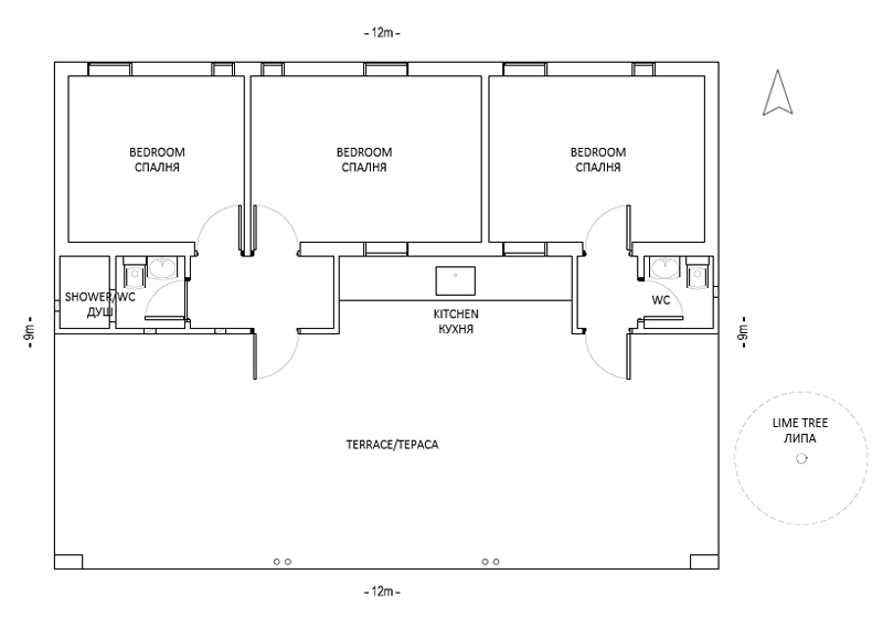
Разгъната площ 108 кв.м с терасата.
722 кв.м парцел
В регулация - ток, вода, бойлер, септична яма.
Разрешително за строеж от Община Приморско No115/05.09.2006
Удостоверение 181 от ЗУТ Nо17 30.10.2020
Снимки 2007 - 2013 г.









Wall Sreet Journal 2015:
https://www.wsj.com/articles/basic-home-essentials-that-are-anything-but-ordinary-1431631271
Снимки както е сега
Нужда от основно почистване и подрязване на обрасналия двор + специален нов собственик, който ще я хареса заради уникалността и простотата й и също ще има много приятели за 4-метровата маса.
Снимки с iPhone от Аделина направени през октомври 2022 г.



Разпределението - простота и функионалност

Село Ясна Поляна - едно спокойно място наистина да избягате от всичко.
Тишина и спокойствие нарушавани само от звуците на хлопки на овце, щракане на щъркели, щурци и понякога чакали, които вият вечер от планината.
Уникално място, притежава магията на десетки дървени скулптури разпръснати из селото.
От 1984 Ясна Поляна е домакин на ежегоден летен пленер по скулпура от дърво, който събира най-добрите български скулптори да издълбават своите творения от местен странджански дъб.
Снимките по-долу са избрани от интернет и редактирани за тази страница.
Повече информация за Ясна Поляна и нейните скулптури:
https://www.myfreshes.eu/village-yasna-polyana/


На 10км са пясъчните плажове и дюните на Приморско.
На 20км са два от последните диви плажове на България - Аркутино и Ропотамо както и националния резерват Ропотамо с уникиални растения и птици.
На 15км е мистериозния Беглик Таш, българският Стоунхендж.
Много места за изследване и приключения.
Снимки Аделина Илиев
https://en.wikipedia.org/wiki/Beglik_Tash

Историята на произхода - парцелът принадлежи на родителите ми от 1977 г. като място за бягство през уикенда на двама градски хора с натоварена работа и двете им деца. Баща ми построи сам дървено бунгало (което беше вдъхновението за проекта на лятната къща) и превърна земята в процъфтяваща зеленчукова и овощна градина. Някои от овощните дървета оцеляха строежа - дюля, смокини, сливи и разбира се ароматната липа на изток от къщата.
